Your browser does not support JavaScript!

6-8 Birkett Place South Geelong

$1,100,000 - $1,200,000
For Sale
Contact Agent

Want to find out the price, inspection times or have a general enquiry? Click on send enquiry to get started.

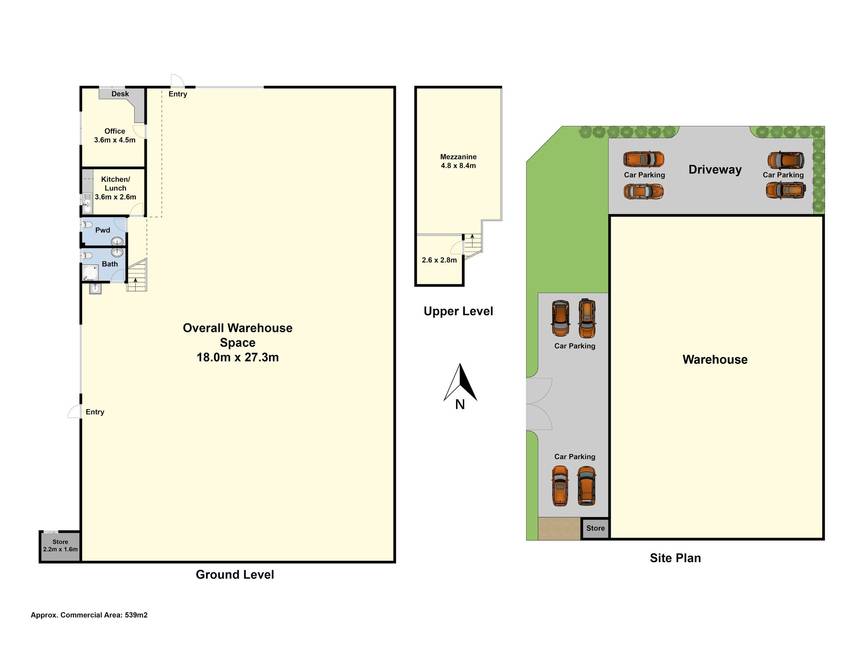
Neat, Well Located Warehouse in Popular Estate

  • High span warehouse on corner site with front and side roller doors

  • Approx. 490m2 floor area plus mezzanine of almost 50m2 on approx. 877m2 land

  • Office, lunchroom, amenities (incl. shower) ample storage, off street parking all behind a high secure fence

  • Current lease until Oct 2026 with no further options and current rent of $55,920pa

  • Industrial 1 zone

Floorplan

Location

Send enquiry

*
*
The Realbase Group is collecting your info on behalf of the Agent, who may contact you about this property and related content. View our Privacy Policy .