Your browser does not support JavaScript!
  • 13 parking

11 Cowie Street North Geelong

$155,000pa + GST & O/Gs
For Lease
Contact Agent

Want to find out the price, inspection times or have a general enquiry? Click on send enquiry to get started.

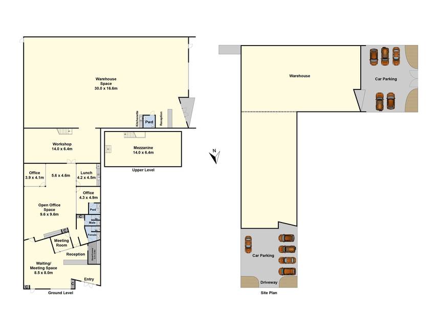
Geelong's Best Office/Warehouse Combo

  • Impeccably fitted out open plan offices, showroom, reception, boardroom, lunchroom and amenities of 410m2 approx.

  • Adjoining high span, open warehouse of approx. 500m2 (60 Edols Street, North Geelong)

  • Storage room, workshop, mezzanine, heating and cooling, security, solar, electric car charger and more.

  • 13 off street carparks

  • Industrial 2 zone

Floorplan

Location

Send enquiry

*
*
The Realbase Group is collecting your info on behalf of the Agent, who may contact you about this property and related content. View Realbase Group Privacy Policy .