Located on a sunny corner site in popular Braebrook, this brand new four bedroom home will be popular with families and investors. Ticks all the boxes with the master boasting an ensuite, WIR and sliding door access out to the private patio. A huge open plan sunny living area with a chef's kitchen and generous butlers pantry. Separate laundry plus double garage with off street parking. Sections and new homes are hard to find! Call to secure this now.
Please note that final plans may vary.
Please be aware the floor and land area information was sourced from RPNZ/Property Smarts and we have not been able to verify the accuracy of the same.
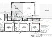
Located on a sunny corner site in popular Braebrook, this brand new four bedroom home will be popular with families and investors. Ticks all the boxes with the master boasting an ensuite, WIR and sliding door access out to the private patio. A huge open plan sunny living area with a chef's kitchen and generous butlers pantry. Separate laundry plus double garage with off street parking. Sections and new homes are hard to find! Call to secure this now. Please note that final plans may vary.
Please be aware the floor and land area information was sourced from RPNZ/Property Smarts and we have not been able to verify the accuracy of the same.