As a Partner and Director in the company, I feel my job is more than just selling properties - I’m committed to thoroughly understanding my client’s options and giving the best possible advice. It helps that I’ve been recognised by the REINSW as the North Shore’s most awarded agent, being the exclusive winner of the coveted award for Auction Marketing Excellence, and have been a finalist for the last five years based on a 90% average auction clearance rate for the past seven years.
I’ve lived on Sydney’s Lower North Shore for the past 10 years and I’m thoroughly familiar with all of the lifestyle advantages that come with living around such desirable suburbs as Crows Nest, Willoughby, Naremburn and Artarmon. In fact, I have achieved more North Shore suburb records than any other single agent and was recently awarded NSW’s number 1 residential sales agent across an entire network, as well as qualifying in the top 1% of elite agents in an international network.
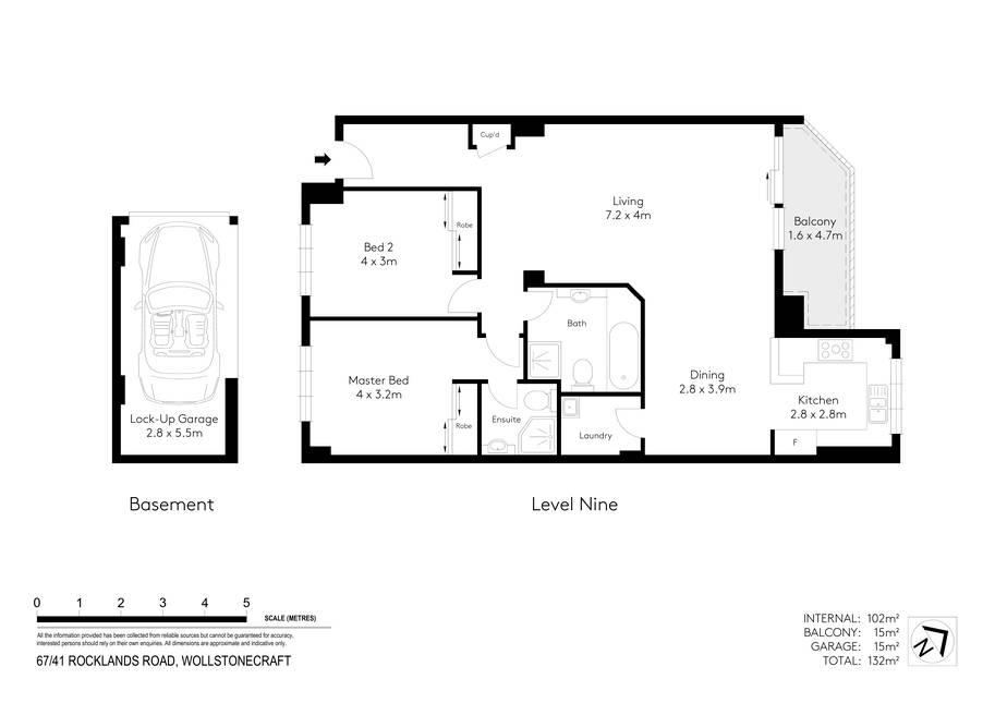
Nestled in the impressive 'Pacific Park' complex, this well maintained security apartment is desirably located and an easy stroll to the vibrant Crows Nest Village, North Sydney CBD and express city buses. Featuring an impressive 132sqm on title, it boasts a light-filled open layout with a north east facing covered balcony.
Spacious lounge and dining
Open plan kitchen with breakfast bar
Tidy kitchen with gas appliances, dishwasher and breakfast bar
Main bedroom with ensuite and distant water views
Full sized bathroom, separate laundry, linen cupboard
Intercom entry, lift access, single secure carspace, common garden
Resort-style facilities include indoor pool and spa, gym, all weather full size tennis court
Walk to schools, cafes, restaurants and all Crows Nest has to offer
Outgoings:
Strata Levies - $1820.03 per quarter approx.
Council Rates - $868.90 per annum approx.
Water Rates - $168.38 per quarter approx.