"Glena", landmark bluestone residence comprising 2 titles on land holding of 1152sqm approx.
An exciting heirloom in this coveted dress circle position and situated in a prominent corner position with valuable rear access from Priory Lane.
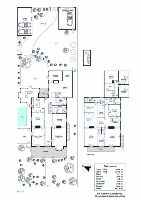
First time offered in 31 years, the residence is currently disposed as a gracious main residence of 10 rooms on the ground level and in addition 2 generous, self contained 2 bedroom apartments upstairs accessed via the original balcony and external, southern staircase.
With magnificent outlooks over the North Adelaide Golf Course the main residence boasts many original features and comprises grand entrance hall, elegant sitting room or music room, study, both with superb original marble fire surrounds, dining room, adjacent to the kitchen, main bedroom with WIR and ensuite, family room and sunny conservatory with northerly aspect.
There are a further 3 bedrooms and children's living area plus cellar. The glistening, fully tiled swimming pool in the northern courtyard is accessed both via the study and the conservatory.
A once in a lifetime, exciting and rare offering as a family estate with immediate potential for a separate income stream if desired.
Council Rates | $10,152.90 pa
SA Water | $710.21 pq
ESL | $706 pa
Year Built | 1880
Are you thinking of purchasing this property as an investment- Speak with our Property Management team on how we can assist you.
All information provided (including but not limited to the property's land size, floor plan and floor size, building age and general property description) has been obtained from sources deemed reliable, however, we cannot guarantee the information is accurate and we accept no liability for any errors or oversights. Interested parties should make their own enquiries and obtain their own legal advice. Should this property be scheduled for auction, the Vendor's Statement can be inspected at our office for 3 consecutive business days prior to the auction and at the auction for 30 minutes before it starts.
An exciting heirloom in this coveted dress circle position and situated in a prominent corner position with valuable rear access from Priory Lane.
First time offered in 31 years, the residence is currently disposed as a gracious main residence of 10 rooms on the ground level and in addition 2 generous, self contained 2 bedroom apartments upstairs accessed via the original balcony and external, southern staircase.
With magnificent outlooks over the North Adelaide Golf Course the main residence boasts many original features and comprises grand entrance hall, elegant sitting room or music room, study, both with superb original marble fire surrounds, dining room, adjacent to the kitchen, main bedroom with WIR and ensuite, family room and sunny conservatory with northerly aspect.
There are a further 3 bedrooms and children's living area plus cellar. The glistening, fully tiled swimming pool in the northern courtyard is accessed both via the study and the conservatory.
A once in a lifetime, exciting and rare offering as a family estate with immediate potential for a separate income stream if desired.
Council Rates | $10,152.90 pa SA Water | $710.21 pq ESL | $706 pa Year Built | 1880
Are you thinking of purchasing this property as an investment- Speak with our Property Management team on how we can assist you.
All information provided (including but not limited to the property's land size, floor plan and floor size, building age and general property description) has been obtained from sources deemed reliable, however, we cannot guarantee the information is accurate and we accept no liability for any errors or oversights. Interested parties should make their own enquiries and obtain their own legal advice. Should this property be scheduled for auction, the Vendor's Statement can be inspected at our office for 3 consecutive business days prior to the auction and at the auction for 30 minutes before it starts.