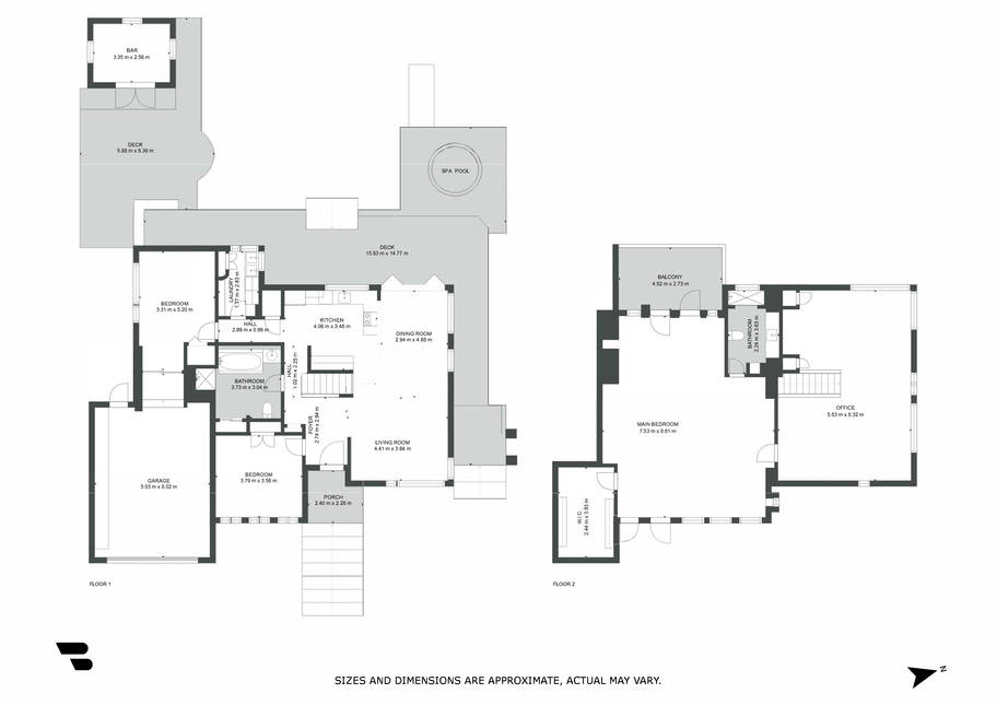
"Paraiso" is Spanish for paradise and so apt in this sensational home upscaled from its 1940s origins in the early 2000s by internationally acclaimed and award-winning architect Jeff Bonner. The spectacular high-end renovation created a unique home with Asian inspired signature touchpoints influenced by widely travelled owners who are moving overseas again. Being sold with most chattels and furniture enabling a seamless shift for buyers.
Agents: Bring your buyers! Rick M listings always offer 70/30 Conjunctionals!
• Sunny spaces with a pronounced minimalism emphasising low maintenance, sound structure, and purity of design
• Easy flow to groomed grounds where auspicious Japanese Zen gardens harmonize with screened hedging and high stone walls
• An idyllic sake kiosk for outdoor entertaining amidst Kwila decking which surrounds an in-ground spa pool
• Contemporary Italian kitchen with sleek granite countertops open to dining and living areas
• Ground floor accommodation of two double bedrooms served by a stunning bathroom with separate tub and shower
• A substantial 68 sqm (approx.) home business base potentially repurposed as more upstairs bedrooms and living spaces
• Stunning 80 square meter Master suite with a large walk in dressing room and tiled ensuite with dual shower fittings for two to shower together
• State of the art Smartphone connected home security system comprising gate intercom, Wi-fi cameras, alarm, keyless entry, intuitive lighting, and motion sensors
• A fully carpeted garage for one vehicle and secure off-street parking for two more
There may be some flexibility if you wish to sell your home before you purchase!
The sale of this property is subject to acknowledgement of cladding-specific non-compliant work. For further info please contact us.
In zone for Mangawhau and Balmoral Schools as well as Mt Albert Grammar School and a swift commute to Auckland's CBD and Auckland International Airport.
"Paraiso" is Spanish for paradise and so apt in this sensational home upscaled from its 1940s origins in the early 2000s by internationally acclaimed and award-winning architect Jeff Bonner. The spectacular high-end renovation created a unique home with Asian inspired signature touchpoints influenced by widely travelled owners who are moving overseas again. Being sold with most chattels and furniture enabling a seamless shift for buyers.
Agents: Bring your buyers! Rick M listings always offer 70/30 Conjunctionals!
• Sunny spaces with a pronounced minimalism emphasising low maintenance, sound structure, and purity of design • Easy flow to groomed grounds where auspicious Japanese Zen gardens harmonize with screened hedging and high stone walls • An idyllic sake kiosk for outdoor entertaining amidst Kwila decking which surrounds an in-ground spa pool • Contemporary Italian kitchen with sleek granite countertops open to dining and living areas • Ground floor accommodation of two double bedrooms served by a stunning bathroom with separate tub and shower • A substantial 68 sqm (approx.) home business base potentially repurposed as more upstairs bedrooms and living spaces • Stunning 80 square meter Master suite with a large walk in dressing room and tiled ensuite with dual shower fittings for two to shower together • State of the art Smartphone connected home security system comprising gate intercom, Wi-fi cameras, alarm, keyless entry, intuitive lighting, and motion sensors • A fully carpeted garage for one vehicle and secure off-street parking for two more
There may be some flexibility if you wish to sell your home before you purchase!
The sale of this property is subject to acknowledgement of cladding-specific non-compliant work. For further info please contact us.
In zone for Mangawhau and Balmoral Schools as well as Mt Albert Grammar School and a swift commute to Auckland's CBD and Auckland International Airport.