Your browser does not support JavaScript!

13 Wattlepark Avenue Moolap

$45,000pa + GST & O/Gs
For Lease
Contact Agent

Want to find out the price, inspection times or have a general enquiry? Click on send enquiry to get started.

Neat Refurbished Warehouse

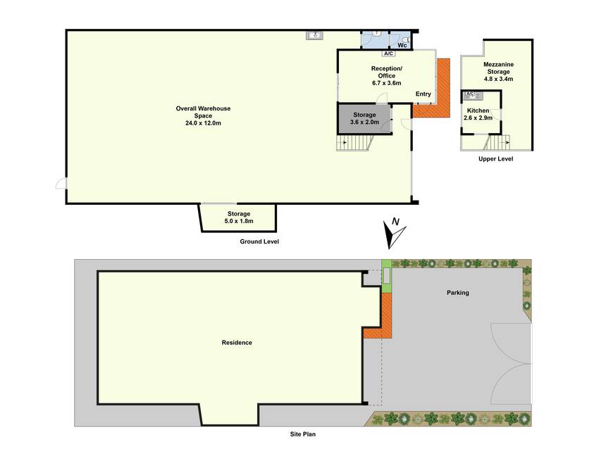
  • Approx. 320m2 floor area including mezzanine of 30m2

  • Office, kitchen, amenities, great storage

  • Security bollards, alarm, LED lights, 3 phase power, new roof, painted warehouse floor, heating and cooling

  • Concrete front yard for 3-4 carparks

  • High, secure fence and lockable gates

  • Industrial 1 zone

Floorplan

Location

Send enquiry

*
*
The Realbase Group is collecting your info on behalf of the Agent, who may contact you about this property and related content. View our Privacy Policy .